Meeting will be online via google meet

Draft Agenda
- 7pm: Welcome and Introductions
- Discuss any additions to the agenda
- Parking committee update (Kathryn Doherty-Chapman, PBOT)
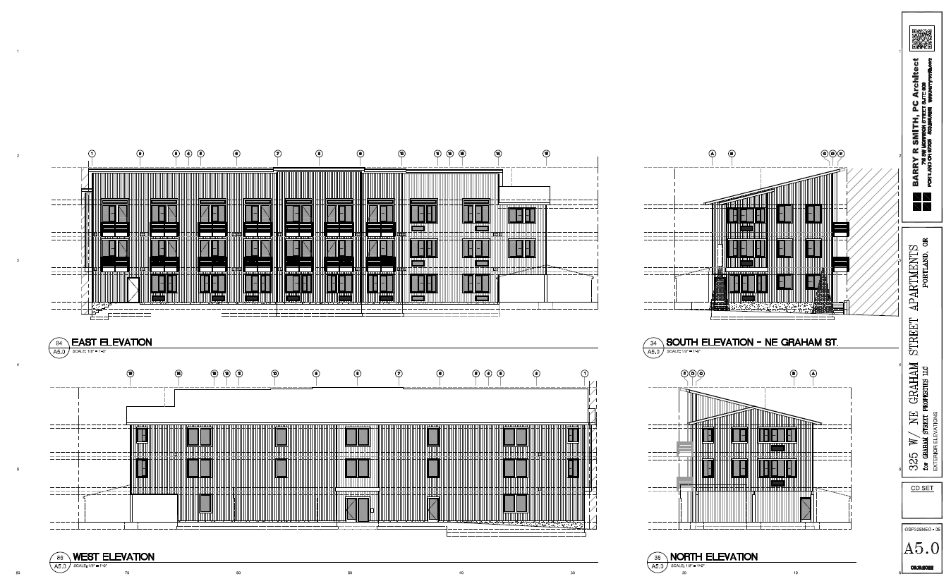
- Discuss Development at 325 W/ NE Graham
- lot just west of the Blue building on the west side of MLK and Graham. 29 units of apartments proposed
- Other Permits:
- Demolition permit 202 NE Graham
- Short term rental 75 NE Graham
- Update on NE 7th
- Upcoming: LUTC Committee & Officer Elections in November
- Upcoming Emanuel Meeting in November
Google Meet voice option
Dial: (US) +1 413-438-2335 PIN: 285 484 290#
More phone numbers: https://tel.meet/sie-kbrb-fpc?pin=5302750939203
